- 11 Tháng 12, 2025
- 0 Bình luận
164 lượt xem
Thiết kế khu bếp nóng nhà hàng: Sơ đồ chuẩn 2026
1. Vai trò của thiết kế khu bếp nóng nhà hàng
Khu bếp nóng là trung tâm xử lý món ăn, nơi quyết định chất lượng và tốc độ phục vụ. Vì vậy, thiết kế khu bếp nóng nhà hàng theo tiêu chuẩn mới năm 2026 giúp giảm giao cắt trong quá trình làm việc, hạn chế rủi ro cháy nổ và tạo môi trường nấu nướng thông thoáng hơn. Khi bố trí đúng, đầu bếp có thể thao tác nhanh, chính xác và tiết kiệm rất nhiều thời gian trong giờ cao điểm.
2. Nguyên tắc khi xây dựng sơ đồ bếp nóng
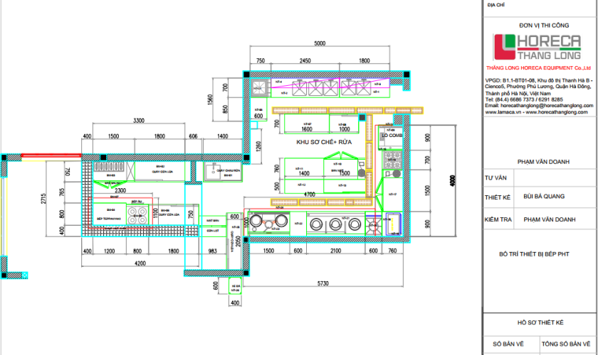
Một sơ đồ bếp nóng hiệu quả không dựa vào số lượng thiết bị, mà dựa vào cách chúng liên kết theo luồng công việc. Các khu vực cần được sắp xếp theo trình tự hợp lý: lưu trữ – sơ chế – nấu – ra món. Nhờ đó, đầu bếp chỉ cần di chuyển trong phạm vi nhỏ nhưng vẫn xử lý đầy đủ các bước nấu ăn, giữ bếp sạch sẽ và đảm bảo vệ sinh an toàn thực phẩm.
3. Sơ đồ chuẩn bếp nóng 2026
Sơ đồ bếp năm 2026 được xây dựng dựa trên một quy trình liền mạch.
Thực phẩm sau khi lấy từ kho lạnh sẽ được đưa về bàn mát để chuẩn bị nhanh. Kế bên là khu sơ chế, nơi xử lý cắt thái và tẩm ướp. Khu nấu – trung tâm của bếp nóng nhà hàng – bao gồm bếp á, bếp âu, bếp chiên nhúng, lò hấp nướng và các thiết bị nhiệt khác. Tùy mặt bằng, tuyến nấu có thể bố trí theo đường thẳng hoặc chữ L để tối ưu không gian.
Khi món hoàn thiện, chúng được chuyển đến khu pass food đặt ở cuối tuyến nấu. Tại đây, đầu bếp giữ nóng, trình bày món ăn và chuyển sang khu phục vụ. Để đảm bảo an toàn, khu rửa xoong nồi luôn tách biệt, tránh giao cắt giữa nước và lửa trong quá trình vận hành.
4. Cách tối ưu không gian bếp nóng
Với những nhà hàng có diện tích hạn chế, tối ưu không gian là yếu tố bắt buộc. Bàn mát kết hợp bàn sơ chế giúp giảm thiết bị nhưng vẫn đủ công năng. Bếp đa năng và kệ inox treo tường tạo thêm diện tích chứa mà không chiếm diện tích sàn. Ngoài ra, hệ thống hút mùi cần được lắp theo toàn tuyến nấu để gom khói, nhiệt và dầu mỡ, giữ môi trường bếp thông thoáng.
5. Kết luận
Một thiết kế bếp nóng nhà hàng đúng chuẩn không chỉ giúp vận hành nhanh hơn mà còn nâng cao chất lượng món ăn và giảm chi phí vệ sinh – bảo trì. Khi sơ đồ bếp được bố trí hợp lý, đội bếp làm việc hiệu quả và an toàn hơn rất nhiều. Nếu bạn cần xây dựng sơ đồ phù hợp với mặt bằng riêng, mình có thể hỗ trợ tối ưu theo từng mô hình nhà hàng.
Ngoài thiết kế khu bếp nóng ra, Horeca Thăng Long còn thiết kế khu quầy bar pha chế cho quán coffee, nhà hàng, khách sạn…

Liên hệ ngay với chúng tôi để nhận tư vấn và báo giá nhanh nhất
Công ty TNHH Kinh Doanh Thiết Bị Horeca Thăng Long
Đ/c: Số 8 – BT1 Khu đô thị Thanh Hà, P.Phú Lương, Tp Hà Nội
Hotline: 0983.84.15.16 – 0963.71.51.51
Email: horecathanglong@horecathanglong.com

